Недвижимость в Чехии

Новостройка в Праге, Прага 5 - Košíře, Hlaváčkova

ДОХОД от аренды 11 960 eur/год.
ПРИБЫЛЬ на инвестиции собственного капитала [%] = 6.38

Цена134 315 EUR - 366 506 EUR

Оплата услуг риэлтора и адвоката
включены в цену i

Купить от 362 EUR/месяц

kredit_usluga.png Ипотека 3.4 % годовых
Ипотечный калькулятор
Количество объектов38 шт.
Планировка1+kk, 2+kk, 3+кк

Ваш мир - Ваши правила!

Управление инвестициями

Техническое обеспечение недвижимости.
Коммерческое управление продажами.

telephone Телефон в Москве: +7(958)1977-909
info@eubuildup.com
Описание

Дополнительные фото

Энергосберегающий проект Residence Vrchlickeho предлагает 73 современных квартиры, от 1 + кк до 3 + кк. На первом этаже каждой квартире принадлежит палисадник. На всех верхних этажах квартиры имеют лоджию, балкон или терраса. Имеется одно коммерческое помещение. Места для парковки на подземном этаже. Поблизости полностью развитая инфраструктура - школы, детские сады, рестораны, магазины. Рядом отличные городские парки, в 10 минутах езды находится  популярный торговый центр Андел и метро.

Карта Google

* - Карта и список близлежащих объектов инфраструктуры представлен компанией Google и не является исчерпывающим.

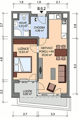
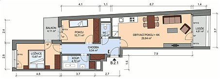
НОМЕР СТАТУС ПЛАНИРОВКА ПЛОЩАДЬ ЭТАЖ БАЛКОН ТЕРАССА УЧАСТОК ЦЕНА
RVA.1.3 доступно 1+kk   38 m2 1 - - - 134 315 EUR
RVA.1.4 доступно 2+kk   53 m2 1 - - - 187 516 EUR
RVA.3.2 доступно 2+kk   52 m2 3 - - - 168 609 EUR
RVA.3.3 доступно 2+kk   52 m2 3 - - - 181 134 EUR
RVA.4.2 доступно 2+kk   52 m2 4 - - - 174 871 EUR
RVA.4.3 доступно 2+kk   52 m2 4 - - - 184 295 EUR
RVA.4.4 доступно 2+kk   58 m2 4 - - - 185 189 EUR
RVA.5.1 доступно 2+kk   49 m2 5 - - - 171 531 EUR
RVA.5.2 доступно 2+kk   52 m2 5 - - - 181 074 EUR
RVA.5.3 доступно 2+kk   52 m2 5 - - - 187 456 EUR
RVA.5.4 доступно 2+kk   58 m2 5 - - - 188 708 EUR
RVA.6.1 доступно 1+kk   39 m2 6 - - - 164 851 EUR
RVB.1.4 доступно 1+kk   54 m2 1 - - - 155 221 EUR
RVB.1.5 доступно 1+kk   51 m2 1 - - - 146 025 EUR
RVB.2.1 доступно 3+кк   74 m2 2 - - - 240 054 EUR
RVB.2.4 доступно 1+kk   50 m2 1 - - - 154 868 EUR
RVB.3.1 доступно 3+кк   74 m2 3 - - - 248 955 EUR
RVB.3.2 доступно 2+kk   57 m2 3 - - - 185 346 EUR
RVB.3.4 доступно 1+kk   50 m2 3 - - - 162 354 EUR
RVB.3.5 доступно 1+kk   54 m2 1 - - - 175 501 EUR
RVB.3.6 доступно 1+kk   55 m2 3 - - - 177 034 EUR
RVB.3.7 доступно 1+kk   52 m2 1 - - - 176 090 EUR
RVB.3.9 доступно 3+кк   74 m2 3 - - - 276 781 EUR
RVB.4.4 доступно 1+kk   50 m2 4 - - - 165 361 EUR
RVB.4.5 доступно 1+kk   54 m2 4 - - - 178 743 EUR
RVB.4.6 доступно 1+kk   55 m2 4 - - - 180 335 EUR
RVB.4.7 доступно 1+kk   52 m2 4 - - - 179 156 EUR
RVB.4.9 доступно 3+кк   74 m2 4 - - - 281 025 EUR
RVB.5.4 доступно 1+kk   50 m2 5 - - - 168 368 EUR
RVB.5.5 доступно 1+kk   54 m2 5 - - - 181 986 EUR
RVB.5.6 доступно 1+kk   55 m2 5 - - - 183 577 EUR
RVB.5.7 доступно 1+kk   52 m2 5 - - - 182 280 EUR
RVB.5.9 доступно 3+кк   74 m2 5 - - - 290 222 EUR
RVB.6.2 доступно 2+kk   50 m2 6 - - - 194 425 EUR
RVB.6.3 доступно 2+kk   51 m2 6 - - - 184 756 EUR
RVB.6.4 доступно 1+kk   50 m2 6 - - - 170 549 EUR
RVB.6.5 доступно 1+kk   54 m2 6 - - - 195 663 EUR
RVB.6.7 доступно 3+кк   89 m2 6 - - - 366 506 EUR